Thanks! You'll receive an email when this product is back in stock.
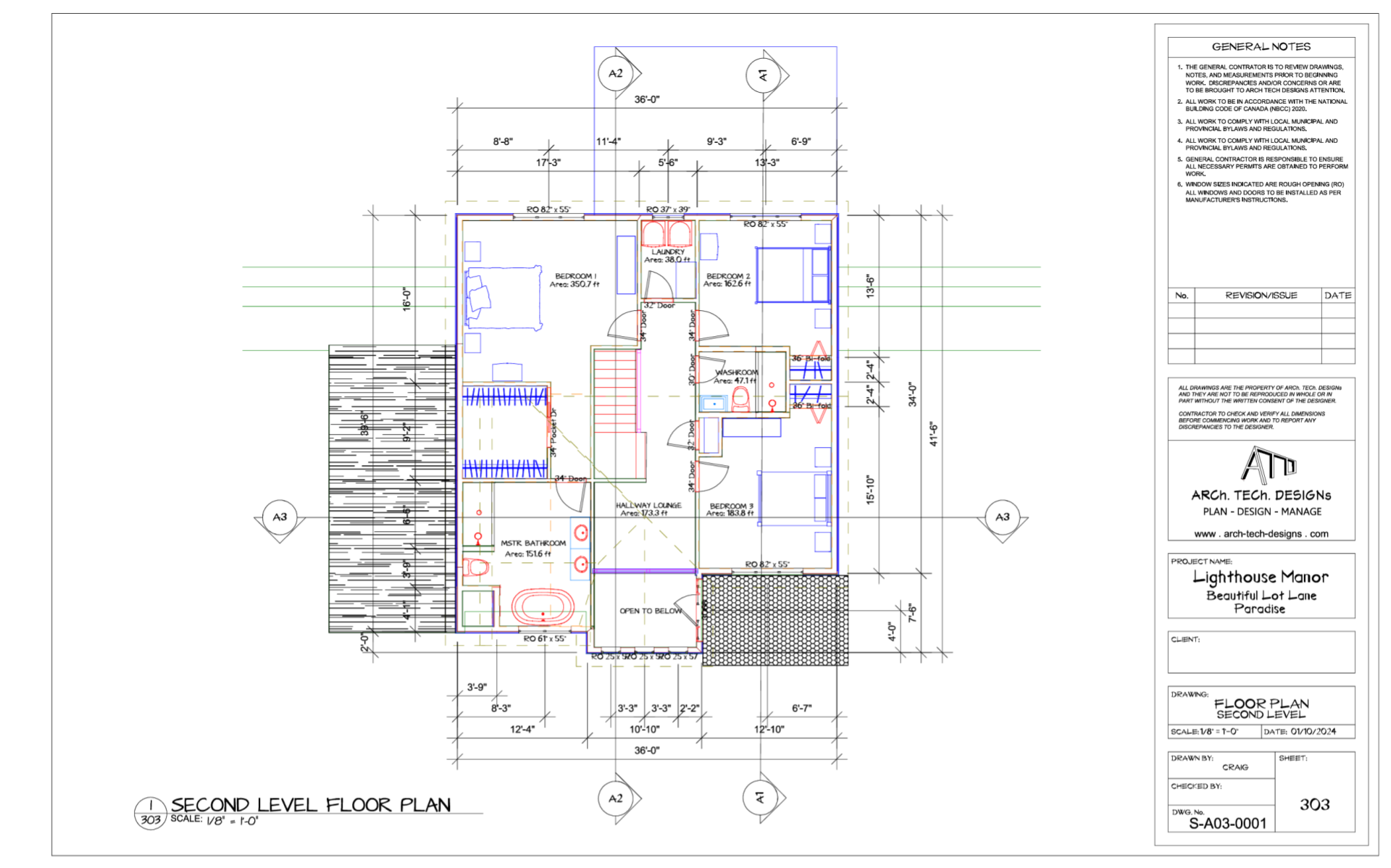
Full set of working drawings for this magnificent, four bedroom, two story house, with full walk-out lower level, and two car garage home. An option of a two story, three bedroom, slab on grade is also available. Full set of House Plans.